Architect Firm: Ishimoto Architectural
Engineering Firm: Unemori Architects
Location: Sukagawa City, Fukushima Prefecture, Japan
Total Floor Area: 13,698 m2
Completion Date: 2018
Photography: Kawasumi | Kobayashi Kenji Photograph Office
The Sukagawa Community Center in Fukushima is a part of a municipal reconstruction project to revitalize the severely damaged city center after the Great East Japan Earthquake in 2011. Following a series of citizen workshops, the architects developed a multipurpose building complex extending five floors. Built in collaboration with Ishimoto Architectural & Engineering Firm, the community center’s architecture by Unemori Architects is characterized by open floor setbacks, cantilevered slabs, and an activity-based floor plan, transcending the building typology of a public community center, thereby, successfully connecting the city and its people.
Revitalizing the City Center
The community center aims to regenerate community life and revitalize the severely destroyed city center. By incorporating the public’s request—gathered through citizen workshops—in the design of the multipurpose community building, the Sukagawa Community Center is created as a public forum, connecting the city and its citizens.
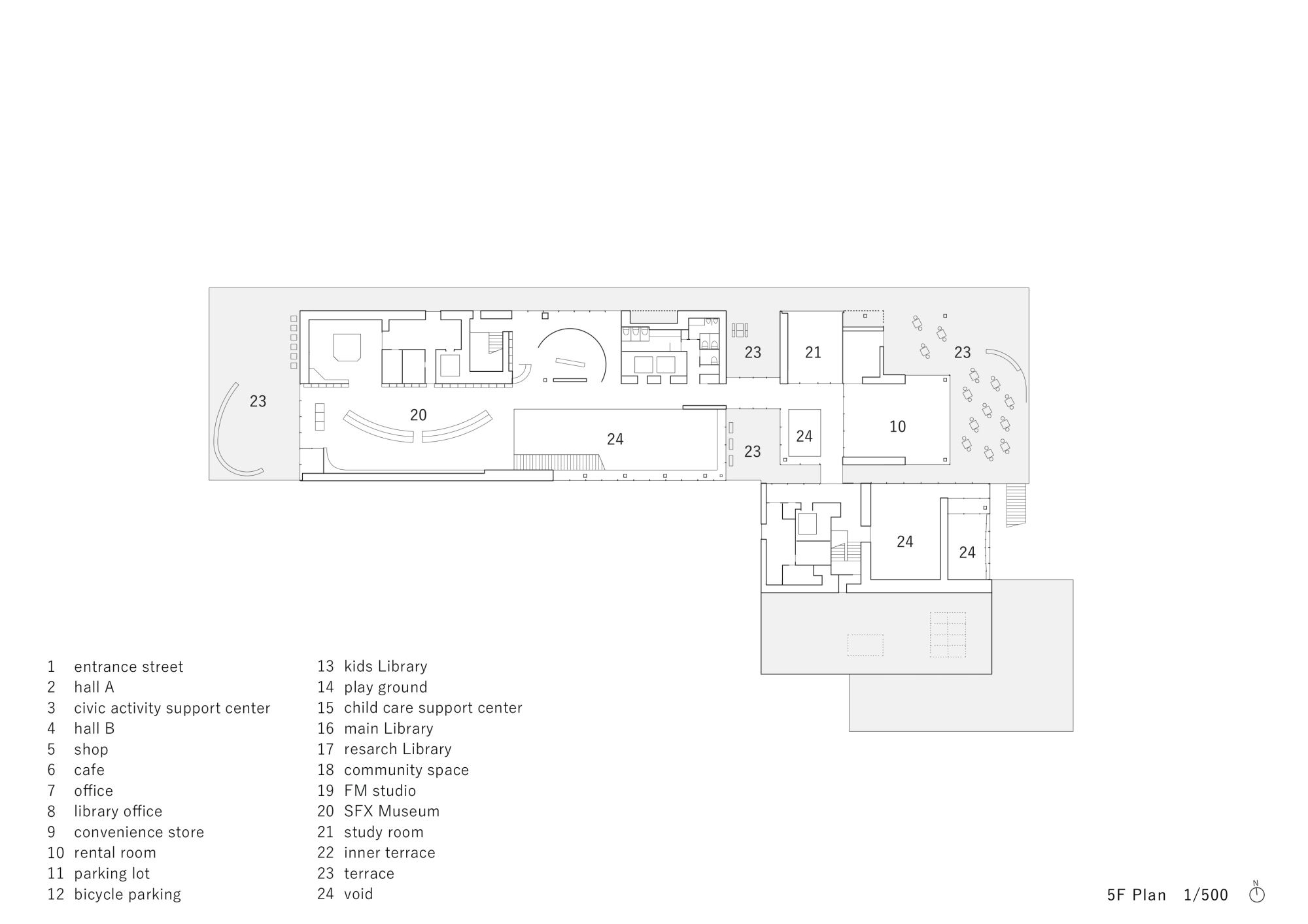
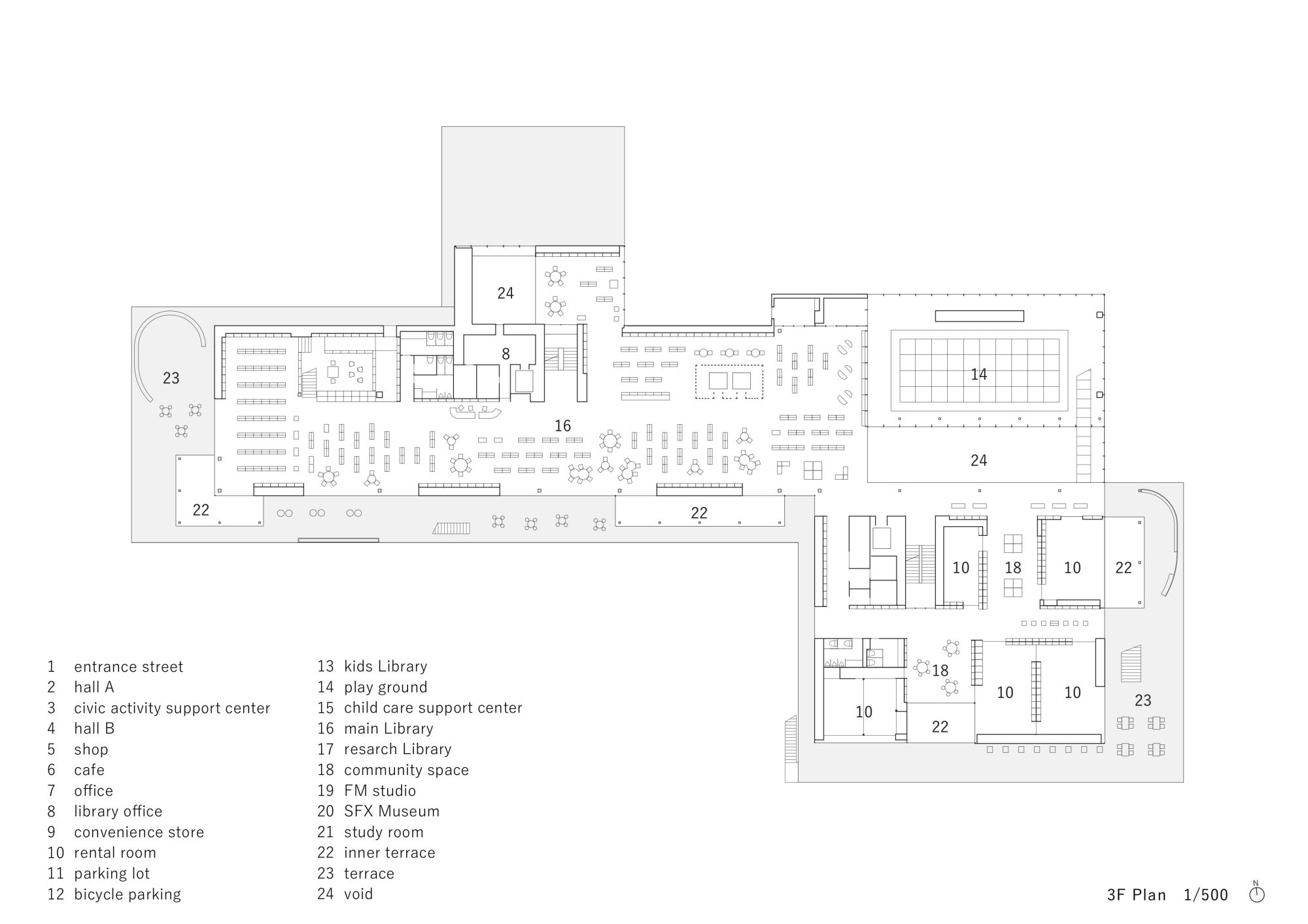
The center includes a library, childcare services, and a three-dimensional play space, as well as a museum, a lecture hall, and a café, among other facilities and amenities. With a total floor areaof 13,698 square meters, extending over five floors, the center offers various socializing spaces and rental rooms for studying, as well as several inner and outer terraces that surround the whole building.
A Complex Structural System
The center is designed as an interlocked structure based on different floor slabs, divided into small sections and staggered, to form an incremental setback on the site facing the historic main street. The building’s architecture, thus, offers many terraces, providing further outdoor activity and socializing spaces, while the recessive façade of the building allows sufficient distance from the neighboring houses.
The interior structure is characterized by an open floor plan and offset floor levels that partly appear to float freely in the cavity of the center, creating various voids and dynamic open views throughout the different floor slabs. In order to realize this complex structural system, a megastructure comprising the third and fourth floors—that entails a steel frame composed of trusses— was designed. The cantilevered slab of the lower floor is suspended from the megastructure and supported by columns on the upper floors, the positions of which are shifted accordingly to bear the load. Further, the trusses provide space for the installation of air-conditioning equipment, as well as smoke exhaust routes in case of a fire; it also serves as a sound-absorbing layer protecting the quiet environment of the library on the upper floors from noise filtering in from the lower floors. The upper floors are connected by gentle slopes and stairs, which allow visitors to walk around the entire building as if taking a walk around the city.
The first floor, which serves as the main entrance to the facility, is a sloping space integrating the 2.5-meter elevation difference of the site. The waiting area, café, and event space located on the first floor are connected with the outdoor space and seamlessly integrated into the hilly cityscape of Sukagawa. The second floor houses children-focused amenities, such as a kids’ library and an open, two-story playground. Located on the third floor is the main library, as well as a number of rental rooms and inner terraces, which allow for quiet working, and which also provide socializing spaces, respectively. The library extends across the fourth floor, where more rental rooms and an open community space are located. The museum is located on the fifth floor of the facility.
Connecting the City and its Citizens
The Sukagawa Community Center offers a wide range of cultural and recreational activities that are assigned different activity themes, such as “Raise” “Play” “Create” “Learn” and “Meet”. The facility is divided into different areas of action offering various opportunities for people to meet, to engage in activities, and to interact with knowledge. The Sukagawa Community Center is designed to transcend functional boundaries and enable a complex experience by reinterpreting the building typology of a public community center. With the complex structural layout of the community center, as well as the reclassification from conventional categories into activity-oriented themes, an architectural solution that addresses the need for a public forum and which simultaneously creates a long-lasting and versatile relationship between the city and its citizens is provided.



loading......