Architect Firm: SPACE | STORY | STUDIO
Principle Architect: Pipol Likanapaisal
Design Team: Tatiya Chuenpreecha
Location: Bangkok, Thailand
Total Floor Area: 3,000 m2
Completion Date: 2018
Photography: Chaovarith Poonphol, Nattakit Jeerapatmaitree
With respect to the architectural design, the story started with the Piyasombat Property Ltd. acquired a 6-story building as a part of the Vorasombat complex on Rama IV road. The renovation plan is to mix the office space with the retail stores, catering to both the complex and the neighborhood.
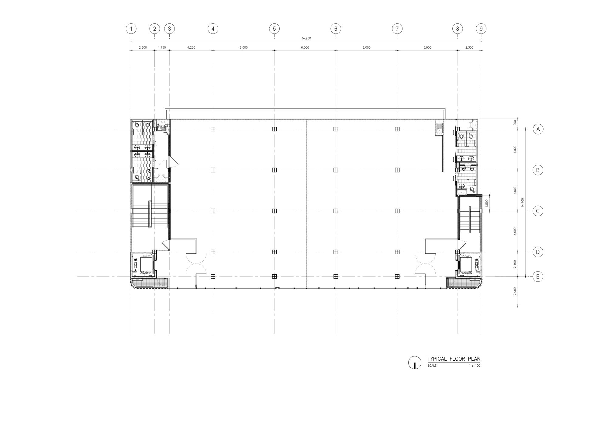
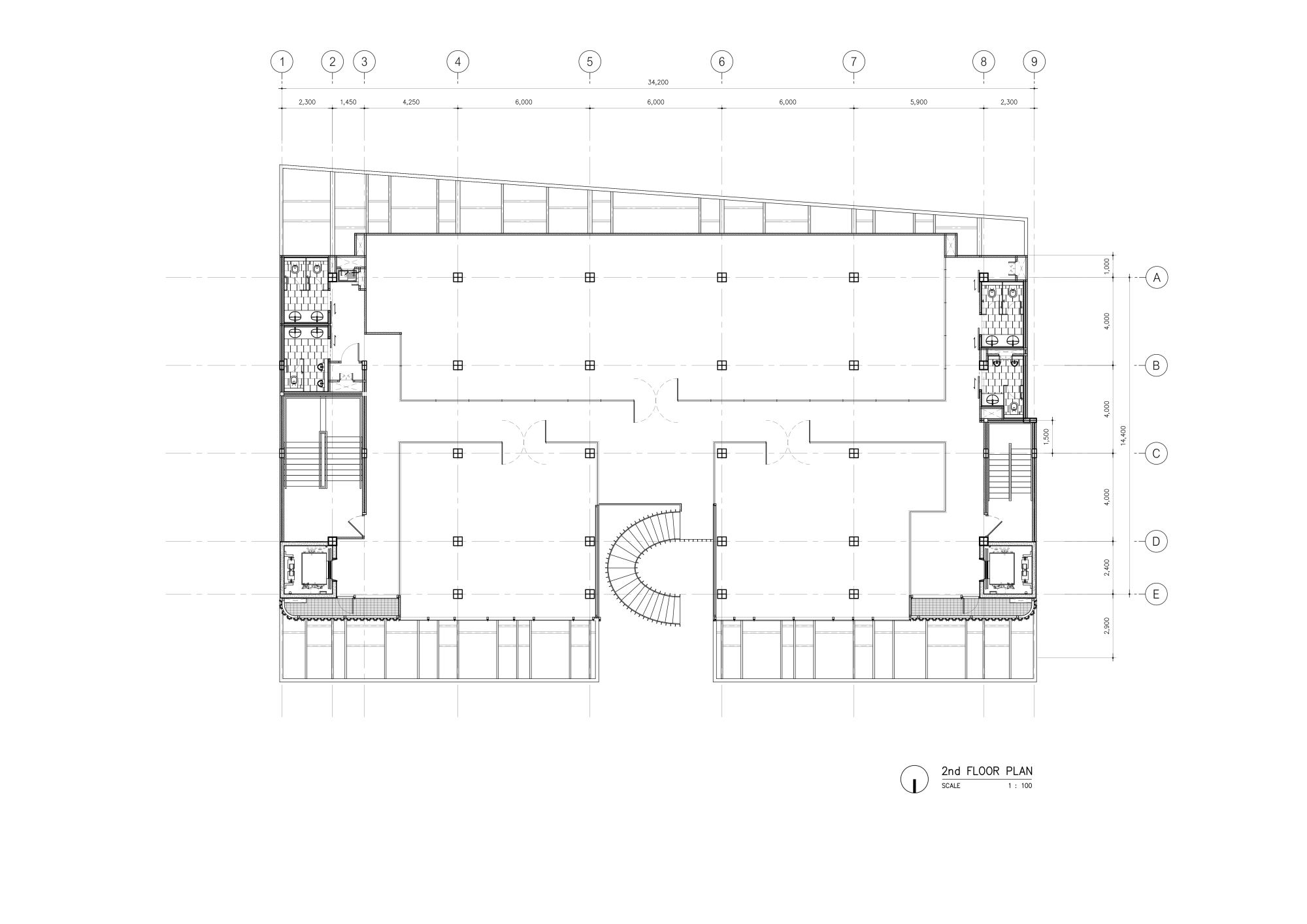
The renovation maintains the existing floorplan based on the structural units. The building conjoins a 6-story block on the left and a 5-story block on the right with separated entries. The design conceptualizes the Siamese Twin in its new facade with the vertical circulations concealed behind the aluminum grill. The glass facade showcases the retail stores to the commuters on the street and the elevated expressway. Under the same design, the different colors render the distinction between the two blocks.
The inspiration for the silver and gold color scheme comes from the former name of the building - Vongvanich. It means expeditious trading. Instead of paint, the use of aluminum grill with anodized color is to modernize the appearance. The architect chooses E&A Moonlight Silver and the 510 Golden Sand for the West and the East sides.
Regarding space management, the building has the separated entries and vertical circulations for both sides. It is a challenge to allocate a dedicated space for a lobby. The solution is the dual purpose to utilize the elevator space for the reception as well. In addition to the limited reception area, the architect desires to provide extra distance to help tenants adjusting from the exterior to the interior environment. The elevator hall on every level serves as a transition zone. We extend the aluminum grill to control the brightness while blending returning conditioned air to control the temperature.
The target of the renovated building is for both the retail and the showroom office. The design of the facade has to consider the possible varieties of the store displays. The no-pattern is the theme of our direction to avoid any pattern mismatch. The no-pattern manifests in the misalignment of the aluminum grill and the randomness of the glass window panels. The elliptical spiral staircase features as the focal point of the facade.



loading......