Architect Firm: Shanmugam Associates
Principle Architects: Raja Krishnan, Santhosh Shanmugam, Shanmugam A
Design Team: Raja Krishnan, Santhosh Shanmugam, Balasubramanian, Manish Bokdia, Vimala
Location: Rajkot, Gujarat, India
Total Floor Area: 3,066 m2
Completion Date: 2017
Photography: Ishita Sitwala
“School is an enjoyable and enriching part of life where students can safely explore their True North”——reads the vision of The Northstar School, a progressive institution established to transform the educational ecosystem. The client’s initial brief was that, a very important part of every child's experience in Northstar be shaped by architecture. The project sits on the south eastern corner of a 17.8 acre barren site located adjoining the RK University campus on Rajkot- Bhavnagar highway.
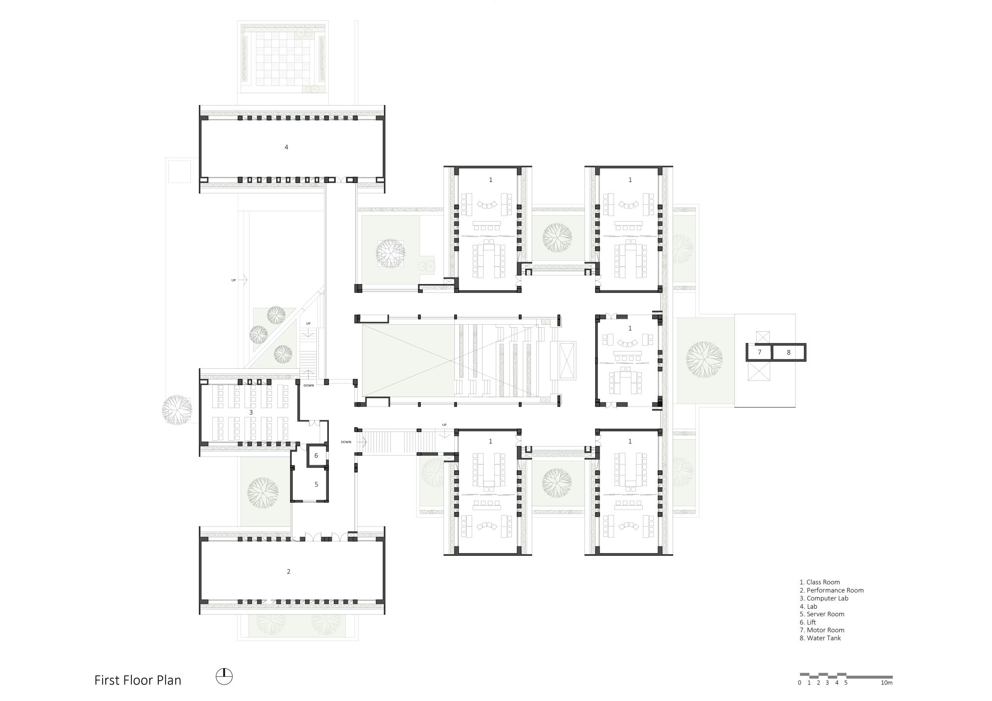
The semi-arid climate of north-west India, dusty yet windy site conditions, 20~30 days of monsoons in Rajkot and supply of STP water from RK University were influential contextual pointers. Overall master planning was conceived integrating three phases of development of which only Phase -1 is built. Open- ended corridors, building orientation and future development were factored into the overall planning. Key functions are accommodated in ground and first floors to keep the built space child friendly.
The primary intent was to find ways to learn with nature. The fundamental unit of schools are classrooms. So, the design process started in programming a single classroom module with cross ventilation, its own private garden and an open to sky jallied courtyard. This module was iterated to arrive from a part to a whole. Between two classrooms is a larger garden that is easily monitored, has a performance space and provisions for conducting classes.
Drawing inspiration from stepped wells of Gujarat, a central courtyard ties all the spaces within each module and is replicated in all phases. This central stepped and vegetated courtyard serves for larger gatherings as a multi-purpose space and for circulation. Integrated within the courtyard amidst the green pockets, creepers and vines is a stage, that is used by children or staff to perform.
With due credits to the structural engineer, the massing on the second floor sits lightly on the floor below and houses a 250-persons capacity multipurpose hall. The structure visually creates a presence as one walks along the heavily canopied main entry walkway.
A secondary skin – Jalli in ground floor and an ambitious creeper screen in first floor, has been planned in all floors to allow natural light, shield dust and provide security. When exploring material for the façade, the criteria was for it to be locally available, have an earthy tone, reflect an institutional character and be economical. Bella, a natural hard lime stone in terracotta color, has been used to blend the built form with existing surroundings.
Architecture at The Northstar School has been planned such that as the building ages, landscape adds in more life into the space therefore taking ownership. Presently, an Indian owl resides in an unused truncated duct, the gulmohar trees lay a red carpet for the main pedestrian entry and Northstar’s horticulture program engages the learners on importance of flora & fauna. The design foundations at Northstar lie on ideologies of exploring contemporary design with local material, using regional references to define built form and finding simplistic solutions for complex design problems.



loading......