Different world from the world
For escaping lazy urban landscape and modern society which is under stressed, once we crossed STELLA bridge which is over the stream where is a boundary of city and this small town, we can meet the stars for living, STELLA FIORE which is 19 town houses for sale.
Stars landed on hill
Architectural Stars have been shaped by important requirements for architecture below.
To introduce sufficient sunlight and surrounding view into the interior spaces in each levels, we designed clear story(roof-level window) framed in angled roofs and to protect privacy from the neighbor’s sight, slant walls are attached on main masses.
Zigzag spaces of skip floor scheme(split level scheme) of houses laid along the hillside shape inclined line on the skins of houses.
Festive hillside village
Alley-like positive space - Inter spaces between each masses of units are positive and are strolling walk way, and both masses framed picturesque view of opposite landscape.
Plaza-like dynamic space - the main road in this site is a way for transportation, at the same time it’s a plaza for a close friendship between residents as community space.
Small but rich space
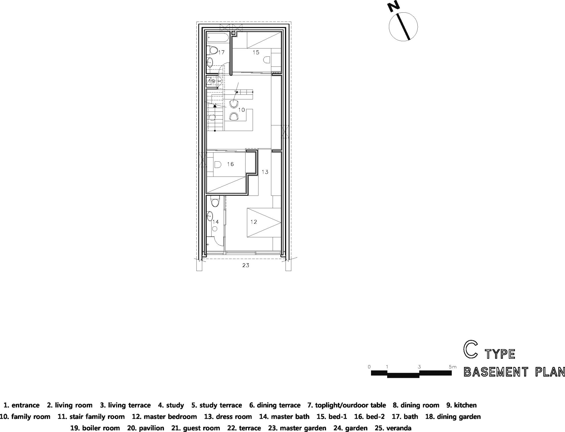
By skipfloor scheme(split level scheme) which has been applied to sloped hillside, interior spaces are small area but having interesting experience of space.
Identification for possessive instinct.
3 types of unit plan, 4 types of shapes and colored aluminium skins which are changed into various colors by viewing points identify all the 19 units as individual one.
Advanced “housing business”
The developer of STELLA FIORE may be a pioneer who sales not real estate but culture in Korea.



loading......