Over the past decades, the world has encountered increasing challenges resulting from unprecedented rapid rates of technological advancements, increasing social and economic disparities, dangers from natural disasters, deteriorating natural resources ,conflicting values and cultures and more recently, life-threatening pandemics.
Amidst such national and global crisis, "Sufficiency Economic Philosophy" elaborated by His Majesty King Bhumibol Adulyadej in 1974 has gained recognition as the beacon of hope guiding the nation towards an Inclusive and Sustainable Growth Model. The philosophy is based on the conviction that sufficiency thinking will strengthen human capabilities with wisdom, ethical values and morality and immunities to cope with the unforeseeable changes and threats.
The " Sufficiency Economic and Agriculture Learning Center" is established with the aim to inspire and disseminate the King's Sufficiency Economic Philosophy to the Thai people. The project is located in Nakorn-rachasrima on a desolate land which was transformed through the New Agriculture Model from arid and rocky deserted areas to rice fields, reservoirs, vegetables gardens, groves of fruit trees and trees for usage, areas for various kind of animal raising.
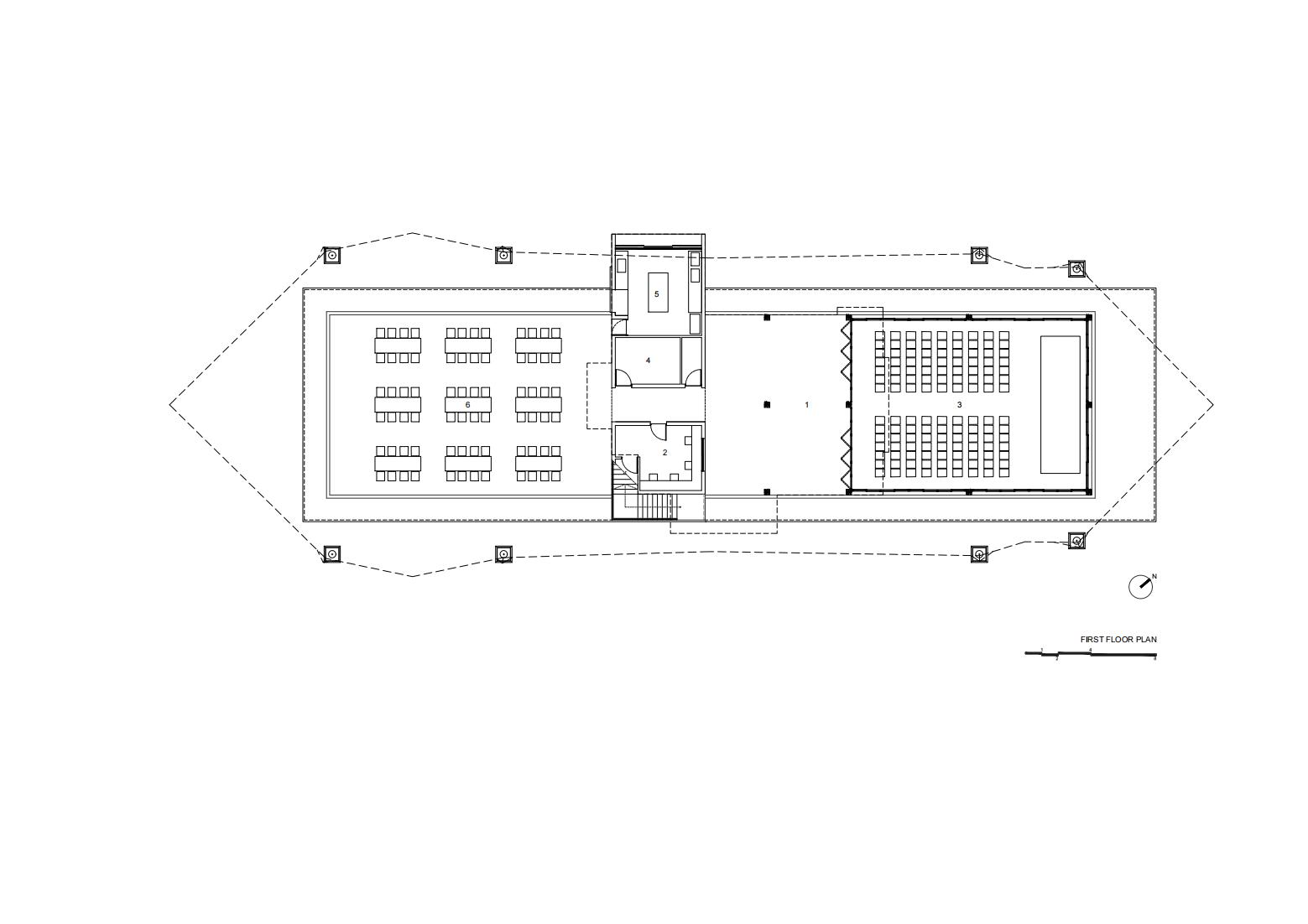
There are two main buildings in the project, namely, The Activity Center and the Service and Restroom facilities. The Activity Center is a two-story building, designed to accommodate up to 100 people in a variety of functions. The first floor provides areas for lobby (reception), rooms for seminars and workshops, cafeteria, and a large kitchen. While the second floor contains offices and meeting spaces for staff, control room and facilities for invited trainers and resource persons.
In designing the buildings for the project, the architects were challenged to explore the essence of Sufficiency Economy Philosophy as related to architecture, especially whether the buildings must conform to traditional rural dwellings of bamboo huts or temporary shacks. After discussions, the team were agreed to the concept that modern design can use sufficiency thinking and principles through transforming local craftsmanship and local materials to create modern designs which are attractive, well suited for present day ways of life, durable as well as achieving harmony with the environment.
The Activity Center is placed as the landmark among the vast agriculture fields, It is designed as a large and open Pavilion to facilitate flexible usage of functions with natural lights and air circulations. The large roof made from locally grown bamboos helps to collect and drain rainwater towards small canals surrounding the building and redirect the water to feed other areas of the land before reaching the natural reservoirs for usage during the drought season. The natural color earthern walls, resulting from an experiment with local craftsmen's skills and local soil further enhance "sufficiency thinking and mindset" in adapting locally available materials and capabilities for modern usage.
Restroom facilities are designed to overcome the usual concerns for cleanliness and stifling atmosphere. To attract usage and visit to the facilities, the architects use local bricks to construct 3 dimensional double curved walls. The restrooms are located within the outer rings encompassing the spacious waiting areas. The spaces within the patterned brick walls helps to facilitate natural lighting and fresh air circulations as well as eliminate dampness and moistures while the solid brick walls ensure the needed privacy.
Both buildings reflects the beliefs that architecture is a living science that must transform and grow with new development of technology in response to evolving human needs and behaviors.



loading......