Architecture Firm: Surbana Jurong Consul-tants Pte Ltd in collaboration with Kajima Design, Tokyo
Lead Architect: Ar Siah Puay Lin
Year of Completion: 2023
Land Area: 5,235 sq.m
Built-Up Area: 13,061 sq.m
Photographer: Daici Ano
Summary
The GEAR is Kajima's regional headquarters, integrating offce, R&D, and open innovation functions. Its skeleton-and-infll design concept with exposed structural frames along the perimeter assures a fexible deployment that accommodates spatial future changes. The GEAR is envisioned as a "smart wellness offce" that also functions as a living laboratory.
Description
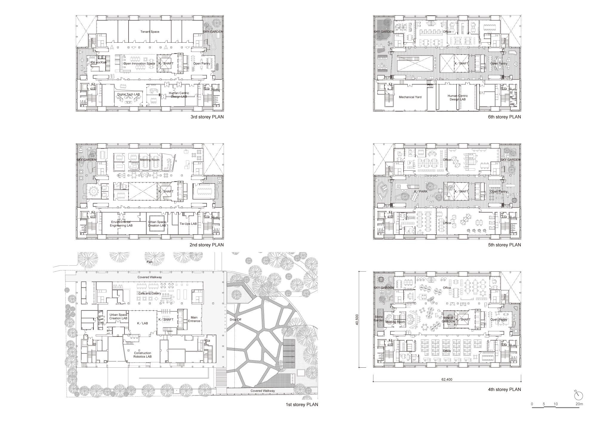
The GEAR is designed as Kajima's Asian regional headquarters, and seamlessly integrates three functions: offce, research and development (R&D), and open innovation. Here, Kajima Technical Research Institute Singapore (KaTRIS) runs its laboratories for leading construction technologies like robotics, and fosters open innovations in collaboration with external entities, governmental institutions, universities, and startups. The GEAR is designed to evolve as a smart wellness building that envisions the future of the environment, city, and living. It is a living laboratory for validating development results and collecting feedback.
The GEAR is located in Changi Business Park and conforms to its Urban Design Guidelines and height constraints posed by its proximity to the airport. Each foor plan is divided into three equal-span zones of 13.5m. K/SHAFT, a vertical light court that penetrates throughout the foors, is set in the middle zone with a gradual spiraling staircase. Offce and laboratory spaces are strategically located on the north and south zones, with a thorough skeleton-and-infll concept that incorporates balconies and exposed structural frames along the entire perimeter. This allows a fexible deployment of space and accommodates future changes in usage and occupancy.
SKY GARDENS are featured on the north side facing a park. They are framed in deep grids that block direct sunlight, while visually embracing the greenery. K/PARK, a double-volume semi-outdoor working space, is on its ffth and sixth foors. This green-flled environment also acts as an experimental space for biophilic design. By employing elements of nature and computer simulations to optimize the interior environment, the building achieves aesthetic and functional excellence while standing as an icon for sustainability. The GEAR received BCA's Green Mark Platinum (SLE) and the frst WELL Certifcation v2 Platinum for the newly built structure.
The GEAR is not just a structure, but an ever-evolving system.



loading......